Quadrilocale in vendita

Valmontone, Via dei Torrioni
€ 65.000
4 locali 4 locali
90 Mq 90 Mq
1 bagno 1 bagno

Quadrilocale in vendita

Valmontone, Via dei Torrioni

Descrizione annuncio

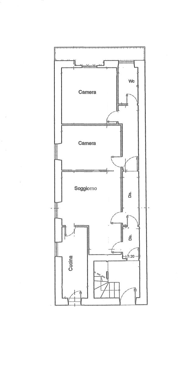
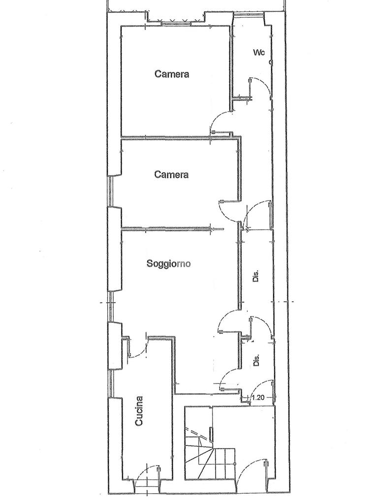
Vicino tutti i servizi proponiamo la vendita di un ampio appartamento con ingresso al piano terra. La palazzina e' stata esternamente completamente ristrutturata pochi anni fa. All'interno, al momento troviamo un unico ambiente grande con poche tramezzature che danno la possibilità di creare o un appartamento o 2 piccoli bilocale( realizzabili poiche' la casa gode di 2 ingressi).

Mostra tutto

Nelle vicinanze

Trasporto pubblico Trasporto pubblico
Valmontone
Valmontone
550 m
Labico
Labico
2,4 Km
Valmontone, via Roma
Valmontone, via Roma
180 m
Via Matteotti
Via Matteotti
180 m
Scuole Scuole
Scuola materna Villaggio Rinascita
1,1 Km
Asilo Villaggio Rinascita
1,1 Km
Sant'Anna
1,2 Km
Cardinale Oreste Giorgi
1,2 Km
I.T.C. Pacle
1,3 Km
Farmacia Farmacia
Brizzi
210 m
S. Anna
870 m
Farmacia
1,5 Km
Farmacia Comunale
2,8 Km
Ospedali Ospedali
Croce Rossa
310 m
Valmontone Hospital
1,0 Km
Supermercati Supermercati
Maxi
840 m
Carrefour Market
1,3 Km
EuroSpin
1,5 Km
Negozi Negozi
Cianni
230 m
Antico forno a legna
260 m
Negozi
270 m
Valentino
350 m
L'alimentari
450 m
Ristoranti Ristoranti
La Locanda del Tasciotto
110 m
Ristorante RossoDiVino
110 m
Olio, sale e pepe
160 m
Trattoria del Sole
210 m
il Vicolo
300 m
Mostra tutto

Caratteristiche

Rif.:
61142232
Piano:
Basso di 3
Totale piani:
3
Balconi:
1
Camere da letto:
1
Arredamento:
Assente
Mostra tutto
Prezzo Prezzo
€ 65.000
Rata mutuo Rata mutuo
€ 306 / mese
Spese annue Spese annue
€ 0
Proponi il tuo prezzoProponi il tuo prezzo

Classe Energetica

G
G
G
G
G
G
G
G
G
EP globale non rinnovabile:
115.20 kW h/m² anno
EP globale rinnovabile:
65.20 kW h/m² anno
EP invernale del fabbricato:
EP estiva del fabbricato:
Anno di costruzione:
1980
Riscaldamento:
Assente

Ti interessa visionare l'immobile?

Fissa un appuntamento  Fissa un appuntamento

Richiedi informazioni

Clicca su Leggi per aprire l'informativa
* Questi campi sono obbligatori

Calcola il tuo mutuo

Semplice e senza impegno
Anticipo

( % )
Mutuo

( % )

pochi semplici passi

inserisci i tuoi dati
Questionario completato
Grazie per aver richiesto un appuntamento senza impegno con un nostro Consulente del Credito e Assicurativo.

Hai inserito correttamente tutti i dati necessari e a breve riceverai una e-mail con un link da convalidare per inviare i tuoi dati.
Affiliato
Valmontone Mediazioni Srl
Via Casilina, 225 00038 Valmontone (RM)

Il nostro staff


  • Antonio Di Cori
    Affiliato
Via Casilina, 225 00038 Valmontone (RM)
Zona: Valmontone-Labico
Mostra su mappa
Orari: mattina: 09:00 - 13:00 pomeriggio: 15:30 - 20:00 ----- Sabato mattina 09:00 - 13:00 pomeriggio: 15:30 - 19:00
Affiliato
Valmontone Mediazioni Srl
Via Casilina, 225 00038 Valmontone (RM)

2026 Tecnocasa Franchising S.p.A. - P. IVA 08365160152 - Via Monte Bianco 60/A 20089 Rozzano (MI). Ogni agenzia ha un proprio titolare ed è autonoma. Privacy policy | Policy utilizzo | Cookie policy